U gebruikt een verouderde internetbrowser.
We raden u aan om de meest recente internetbrowser te installeren voor de beste weergave van deze website.
Een internetbrowser die up to date is, staat ook garant voor veilig surfen.

Helaas, dit pand is verhuurd

8900 Ieper

Omschrijving

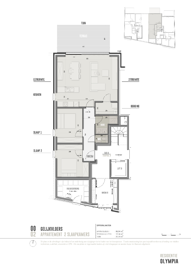
Gelijkvloers nieuwbouwappartement met 2 slaapkamers, zonnige tuin en autostaanplaats.

Dit nieuwbouwappartement is gelegen in het centrum van Ieper en nabij diverse faciliteiten (winkels, scholen, enz.)
Het appartement is als volgt ingedeeld: inkom, apart toilet, ruime lichtrijke leefruimte met open en volledig geïnstalleerde keuken, aparte berging/wasplaats, 2 slaapkamers en een badkamer met dubbel lavabomeubel en inloopdouche.

Buiten is een zonnige tuin met terras en achterpoortje.
Achter het gebouw ligt een private autostaanplaats.

Het appartement werd volledig geschilderd en beschikt reeds over lichtarmaturen.
( het appartement & de tuin worden nog volledig afgewerkt en opgepoetst. )

- €50 syndickosten / maand


Niet gevonden wat u zocht? Schrijf u dan vrijblijvend in op onze nieuwsbrief en blijf op de hoogte van ons recentste aanbod.
Schrijf u in
Terug naar boven
Sluit menu Vastgoed Vancayzeele