U gebruikt een verouderde internetbrowser.
We raden u aan om de meest recente internetbrowser te installeren voor de beste weergave van deze website.
Een internetbrowser die up to date is, staat ook garant voor veilig surfen.

Helaas, dit pand is verkocht

8908 Ieper

Omschrijving

Nieuwbouw gelijkvloers appartement met tuin en mogelijkheid tot garage. ( 6% btw mogelijk )

Residentie Clémence is een stijlvol en betaalbaar nieuwbouwproject van 7 appartementen met 1 of 2 slaapkamers en is centraal gelegen tussen Ieper en Poperinge in de dorpskern van Vlamertinge. De bakkerij, slagerij, buurtwinkel, sportcentra en horecazaken zijn slechts op enkele ogenblikken van dit appartement verwijderd.

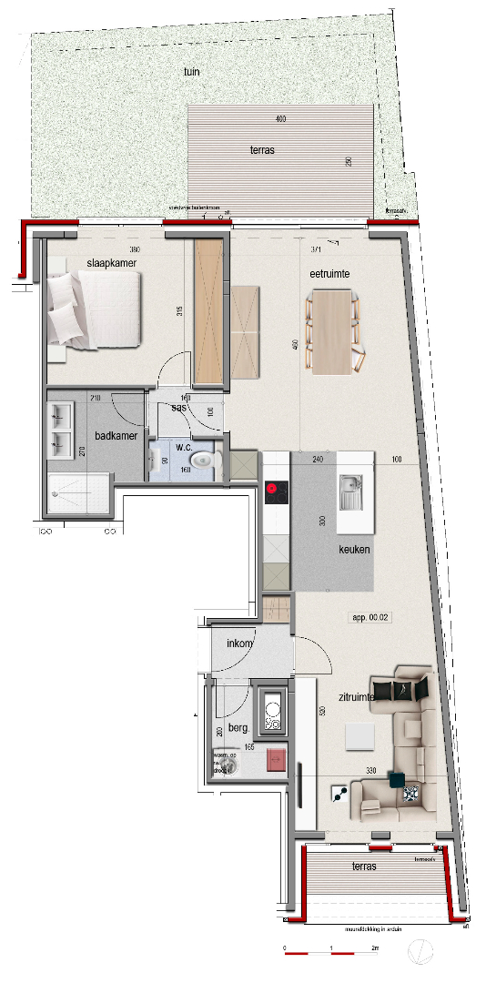
Appartement 0.2 bevindt zich op de gelijkvloerse verdieping, er zijn slechts 2 appartementen op dit verdiep. Wanneer u het appartement binnenkomt, komt u terecht in de inkomhal met aansluitende bergruimte. Daarnaast hebt u de lichtrijke woon- en eetkamer met open volledig geïnstalleerde keuken.
Verder zijn er nog een ruime slaapkamer en een badkamer (wastafel en douche) en een apart toilet.
De tuin met aangelegd terras bevindt zich achter het gebouw aan de zuidkant en aan de straatzijde is een tweede terras.

Er kan een garage en/of autostaanplaats aangekocht worden.
Het gebouw beschikt over een gemeenschappelijke fietsenstalling en vuilnisberging.

Dit project komt in aanmerking voor 6% btw.



Niet gevonden wat u zocht? Schrijf u dan vrijblijvend in op onze nieuwsbrief en blijf op de hoogte van ons recentste aanbod.
Schrijf u in
Terug naar boven
Sluit menu Vastgoed Vancayzeele